plastic piling

THE MultiLock® Plastic Sheet Piling

THE MultiLock® Plastic Piling

THE MultiLock® is our biggest selling plastic sheet pile.  Part of the reason is this product appeals to an extremely wide range of applications.

There are currently three versions of MultiLock® that we offer.  The original MultiLock® Sigma, MultiLock® Delta and now MultiLock® Diplo.

From an strength view point the product specifications are identical, the difference is the black brown frontage of Sigma, the interlock seal of Delta, and the premium offering of Diplo which has the black brown on both sides and a seal in the interlock.  

Accessories available with MultiLock® Plastic Piling include our extremely popular capping bean, which is available in 3m and 6m lengths.  To complement this capping beam we also supply the capping beam connectors, which hide the joints between beam sections.   As an alternative to the beam, and better suited to curved designs is the capping plugs that we have available.

The range would not be complete without corner piles, which are available with or without seals, to suit Sigma, Delta and Diplo products.

Proving quite useful is our 4 way connector, which enables a wall to be buttressed, for additional rigidity.

MultiLock® Specifications

Please click in the image below

MultiLock® Plastic Piling was a game changer when first introduced into the UK by THE Plastic Piling in 2007.  It soon became “THE Contractors choice” for plastic piling in the UK, as it removed the stress of installation and offer incredible versatility.  MultiLock® fulfils the promises and potential that plastic piling always had.   

You likely will have seen many photos of MultiLock® as a hybrid, that is when used in conjunction with posts or tubes driven inside, this is discussed more below. What is important to stress is that MultiLock® is equally as popular used on its own, the Hex designs providing incredible rigidity over older standard Z plastic piling.

MultiLock® plastic piling was the first plastic sheet pile, worldwide, to offer a new sheet pile design. The hexagonal tubular construction provides a exceptionally high level of rigidity for a plastic sheet pile.  This advanced design enables the use of much more powerful equipment, than conventional older designs of similar strength.  Having enough pile driving power to overcome the ground resistance can be the difference between a successful installation or a struggle.

When used with piling mandrels  MultiLock® became THE plastic pile for Cut-off wall structures in the UK, as it is a relatively light profile which is more efficiently driven in long lengths than other plastic sheet piles of similar, often greater strength.   The innovative Hex design, made the most efficient use of the plastic, reducing costs without compromising performance. 

In water control applications the 500mm width  offering a wide profile, so fewer joints and with the introduction of MultiLock® Delta, a version with a gasket seal to improve watertightness even more.

Click on the above image to read more about MultiLock® Delta and the use of sealants in plastic sheet piling.

Click on the image above to read the report produced for Profextru by Deltares which looked at the leakage through MultiLock® Delta, also known as ProLock Delta.

MultiLock® THE original hybrid sheet pile

MultiLock® plastic sheet pilings true versatility is shown when used in conjunction with wooden posts, steel tubes, scaffold tubes, bamboo tubes, steel I beams. and most recently Dywidag ground anchors.

The concept originated with the combination of short lengths of MultiLock®, shorter than would normally be used in conventional sheet piling, with longer softwood posts.   

Timber post are very popular either on their own or with products such as NicoSpan.  They drive fairly easy, with basic equipment, can be sustainably sourced and are cheap.   However, untreated softwood posts may only last 5-10 years, with standard treated softwood may be lasting 10-15 years. 

The danger zone, where the timber is most likely to rot is at the soil line, or where the timber is exposed to alternating wet and dry conditions.  Alternating between wet and dry conditions will cause the wood to expand and contract, leading to cracking. These fissures allow oxygen and other decay agents to penetrate deeper into the material.

So why use timber with MultiLock®?

Well softwood is very cheap, easy to sustainably source and easy to drive.  So if we can somehow extend the life of the softwood, this would provide an excellent solution.

We know that softwood is stable in a permanently wet or waterlogged environment as the oxygen levels are much lower, too low for the decay causing micro organisms.  Anaerobic bacteria and fungi are much less effective at breaking down wood fibres than their aerobic (oxygen needing) counterparts. So by combining with plastic piling, provides a very innovative solution.

The concept shown below, uses a short length plastic sheet piling with a much longer length of post.  The MultiLock® driven around 500mm into the ground provide s safety zone which overlaps the stable zone for the softwood.  So in the area that the softwood would rot, you now have plastic sheet piling.  This combination has been shown to provide a 60 year solution!

The hybrid also benefits from reduced cost as you are using less sheet piling.  It is very similar to a king post solution, where the sheet pile is akin to the infill panels.  However, the sheet piles are not passive in the design, they help support the load, they interlock with their neighbouring sheet piles and are driven into the ground, rather than resting on the riverbed.   This provides the further advantage over a kingpost wall, in that there is now undercut protection.

Basically a kingpost systems, using sheet piling, with the benefits of economy and speed of installation, but without the drawbacks.

The above is based on the requirement that long term loads are within the capacity of the plastic sheet pile alone at the top, since the softwood at the top will eventually rot.  So in the short term you will have the extra strength of the post in the top section of the pile wall.  Now to compensate for the loss of strength as the timber posts rot, one can use anchors to provide additional support at the top of the sheet pile.

With the introduction of the MultiLock softwood hybrids, many contractors would and could appreciate the simplicity of installation.  It is easier to install a shorter plastic sheet pile, even MultiLock, and fairly straightforward to just drive the sheet 500mm.  The structure the co-supported using longer easily driven softwood posts.

As a direct result the hybrid system stands the best chance of successful installation using small handheld equipment such as our PD1 Post and Pile driver

The video below by Tildsley Transformations, is a great example of the system.

The speed of installation of the hybrid system, MultiLock® and softwood post, and the lightness of the products, has enabled its use in contingency works such as seawall breach repair.  The plastic piling hybrid was found to be a much faster and easier solution than traditional sandbags.

MultiLock® and Steel

Where this concept has grown much broader is the integration of other materials.  For example steel tubes, such as 88.9mm with a 5mm wall thickness or Scaffold tubes, or if after greater strength I beams.  This combination of steel and plastic piling, opens up much higher load cantilever options, plus opens up using the product in much harder soils.

Above it was mentioned that when using softwood, the top portion of the post is disregarded in terms of what strength it contributes, since at some point it will rot.  Switching to Steel means you can include this region as it will last much longer.  So for designs that need more strength, but can’t be anchored, steel tubes or I beams provides a useful solution.

Scaffold tubes have been used, which whilst not as strong as 88.9mm or 100mm tube, are exceptionally easy to install.

Applications such as temporary works, benefit from this concept, from inside basements, where sheets needed to be hand lifted through the building, to excavations at Jaguar Landrover, to Birmingham botanical gardens with Guy Martins and “How Britain Worked” in 2012.

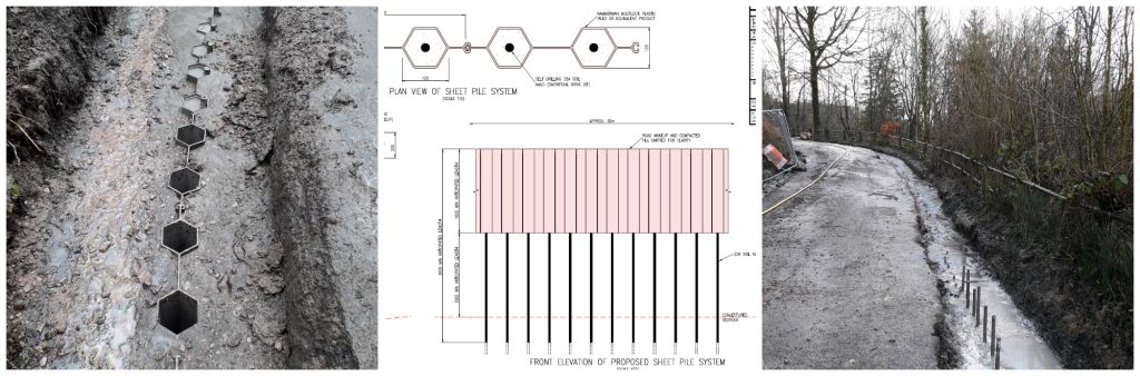
Below shows the innovative use of Dywidag anchors and MultiLock® for road haunching is Scotland.

Click the image above to read or download our Sustainability, carbon footprint study. A  a project conducted in collaboration with the Transport Research laboratory and Cranfield University in 2012.

Not only was the actual project a first, but also that the study took into account the strength of the different products, and also performance and ease of installation.

Click the above image to read or download the 2022 Sustainability study conducted by Profextru, which looked at the ProLock brand of products ProLock Omega, MultiLock Sigma and Delta.

A key part of this study was that it highlighted the 60 year lifespan of the system.  It also looked at installation and end of life removal of the system.  A very comprehenive report.

So what is the order of installation sheets or posts?

So what do you install first the plastic sheet piles or the posts? The answer is either and both.  When the systems was first introduced the methodology was based around setting up the plastic pile first and then driving the posts level with the plastic pile and then driving the last half metre together.  Some sites would then drive the timbers deeper, using an extension rod, as they could then utilise the full post length in the long term as they drove it down to the rot free zone.

This way avoids the creation of a soil plug, that will form when you drive the MultiLock® sheet first and then attempt to drive the posts.  If the soil plug isn’t easily displaced by the post, then you can damage the sheet pile.

For those jobs that need to drive the sheet pile first (possible if you anticipate the longer post refusing before you get to the sheet pile) then it is feasible to drive the sheet pile first, you just need to deal with the soil plug.  This can be through using an auger or water jetting. The video below courtesy of Olympic Plant Hire.

For sites using a piling vibrator, we can supply internal mandrels, that fit inside the MultiLock® plastic pile, and prevent soil ingress, so there won’t be a soil plug.  Note mandrels are only of use with piling vibrators that can clamp onto the mandrel head, and drive and extract the mandrel once the sheet is driven.

MultiLock® and Bamboo

Nothing is perhaps more rewarding than when customers, engineers take your concept and push it further.  A great example of this is the use of MultiLock® Plastic piling in conjunction with bamboo.

In 2016 a project titled Replacement of Orchard Bridge, by Ringway Jacobs, Essex Highways and installed by Topbond plc; pioneered the use of MultiLock® with Bamboo.  This project utilised Guadua Bamboo poles as the kingposts and this scheme was shortlisted at The British Construction Awards in 2016.  Whilst we didn’t win, the prestige of becoming a finalist was undeniable.

In 2017 Jacqui Hogger of Ringway Jacobs had a paper published at the Footbridge 2017 Conference in Berlin, titled Innovation in providing a solution to river scour.  In this paper, she described the appeal of the hexagon shape.  

One such structural formation is that of the hexagon. The diverse natural instances of hexagons include, for example, the bee’s honeycomb and marine coral where in both cases hexagonal formation gives an encapsulating structure enhancing rigidity and stabilising strength. 

Was there an opportunity to replicate nature’s principles in the use of hexagonal components to enhance design and materials used in future projects?

Looking for a viable scour solution that incorporated durability, ease of installation/ manual handling and ongoing low maintenance requirements suggested the potential use of a hexagonal tubular plastic sheet piling with a hybrid kingpost design”

The conclusion stated in this paper was that the combination of materials and ease of on-site construction negated the need for heavy piling plant for installation (resulting in a reduction in cost of approximately 42%). The longevity and low maintenance requirements of the piling combination contributed to an overall reduction in construction and ongoing maintenance costs. Also, the materials used were cheaper than traditional materials. The products used are renewable/sustainable and have a low carbon footprint.

Other Plastic Piling Products

ProLock Omega Plastic Piling

Truline Plastic Piling

Budget Plastic Piling

Z Profile Vinyl Sheet Piling

U Profile Vinyl Sheet Piling

Join Our Industry Mailing List

Stay informed with the latest updates, product releases, and expert insights from the plastic piling industry.

Name